Harta Adauga

Yacht Kid 2024, Prima Inchiriere, Ap 2 camere 63 mp, Centrala, Loc Parcare

1.000 €

Sector 1, ieri, 14:27

Descriere anunt

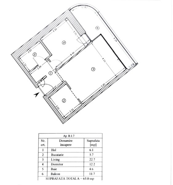
Prima Inchiriere, Lac Floreasca, Aviatiei, Paza 24/24, Piscine. Apartament 2 Camere 63 mp cu Terasa Centrala, Aer Conditionat, Masina de Spalat Vase, Contorizat, Mobilat, Utilat nou 2025, Nefolosit, etaj 1/10, str Anton Holban 6, Loc de Parcare Subteran inclus

Inchiriez 2 Camere 63 mp cu Terasa, in Complex exclusivist Yacht Kid, situat in zona Aviatiei, pe Lac Floreasca, str Anton Holban 6, etaj 1/10.

Imobilul este la Prima Inchiriere, are toate imbunatatirile, inclusiv Centrala, Aer Conditionat, Masina de Spalat Vase, TV Smart, consumuri contorizate, Mobilat, Utilat Totul Nou 2025, Nefolosit.

Fiind bloc nou 2024 a fost prevazut din constructie cu Termosistem (izolatie termica exterioara), astfel vara va fi mai racoros cu 4 grade, iar iarna mai calduros cu 4 grade.

Proprietarul ofera Loc de Parcare Subteran inclus in pret.

Vecinatati: Lacul Floreasca, Aviatiei, Metrou Pipera, Upgrounds Residence, Piscina si Sala, Pescariu Sports Center, Promenada Mall, Bd Dimitrie Pompeiu, Metrou Aurel Vlaicu, Barbu Vacarescu, Calea Floreasca, One Residence, Lacul Tei, zona birouri din nord, Sector 1, Parcul si Lacul Tei, Parc si Lac Herastrau, Cartier Francez, Primaverii, Dorobanti, Baneasa, Arcul de Triumf, Piata Charles de Gaulle, Aviatorilor, Casa Presei Libere, Romexpo, Bd Aerogarii, Sos Nordului, Nusco City

Pentru oferte asemanatoare verifica anunturile utilizatorului

Contact Andrei Rosu: 0727.321.447

Caracteristici, dotari

Optiuni interior

Apometre
Centrala
Internet
Frigider
Liber
Televizor
Aer conditionat
Balcon
Inst. electrice noi
Masina de spalat
Termopan
Cablu
Inst. sanitare noi
Renovat
Usa metalica

Optiuni exterior

Lift
Loc parcare
Reabilitat termic
Vezi telefon
andreirosu23@*****.c..
Anunturile utilizatorului
Distribuie Facebook
Anunturi din aceeasi zona
Vezi prețul mediu al zonei
Trimite mesaj privat

Pagina pe care doriti sa o accesati poate sa contina elemente care nu sunt recomandate minorilor!
Va rugam sa confirmati ca aveti peste 18 ani!