Harta Adauga

Piata Iancului inchiriere cladire multifunctionala 995 mp utili

7.950 €

Bucuresti, ieri, 17:36

Descriere anunt

DE INCHIRIAT – CLADIRE INDEPENDENTA IDEALA PENTRU ACTIVITATI EDUCATIONALE, MEDICALE SAU BIROURI

Situata in Sectorul 2, Bucuresti, Piata Iancului , aceasta proprietate spatioasa se preteaza perfect pentru:

✅ scoala privata

✅ gradinita

✅ after-school

✅ clinica medicala

✅ centru de recuperare

✅ birouri sau sediu de firma

Suprafata totala:

Suprafata utila: ~995 mp

Suprafata construita: ~1.125 mp

🔹 Regim de inaltime:

Subsol + Parter + 2 Etaje + Mansarda

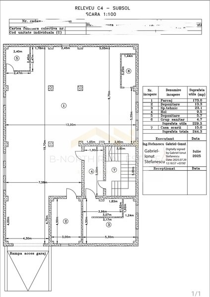
🟦 Subsol (~232 mp utili):

2 camere principale (depozitare + spatiu tehnic)

Parcaj auto interior cu 4 locuri

Camera tehnica

🟩 Parter (~224 mp utili):

4 camere principale:

Camera de zi (71,86 mp)

Biblioteca

Bucatarie

Loc de luat masa

2 grupuri sanitare

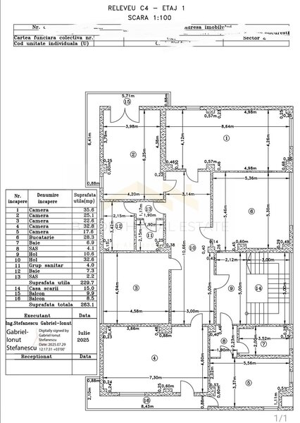
🟨 Etaj 1 (~229 mp utili):

4 camere principale:

Camera de zi

2 dormitoare

Bucatarie

2 bai

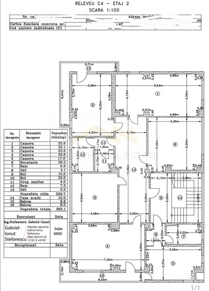
🟧 Etaj 2 (~229 mp utili):

4 camere principale (identic Etaj 1):

Camera de zi

2 dormitoare

Bucatarie

2 bai

🟪 Mansarda (~79 mp utili):

1 sala open space

✅ Numar total camere principale: 15

✅ Numar total grupuri sanitare: 6

🔹 Dotari si facilitati:

Centrala termica proprie: Contorizare separata utilitati: Spatii tehnice si depozitare generoase:Parcari subterane si exterioare; Acces facil pentru persoane cu dizabilitati

Cladire independenta, pretabila multiple activitati

🚍 Acces la transport public:

Metrou Piata Iancului – ~10 min mers pe jos: Tramvaie: 1, 10, 21, 46: Autobuze: 330, 335:Troleibuze: 66, 69

🏬 Puncte de interes:

Piata Iancului si Piata Obor

Mega Image, Lidl, Kaufland

Clinici, farmacii, restaurante

Scoli si gradinite private si de stat

🎯 Destinatii recomandate:

Scoala, gradinita, centru educational

Clinica medicala, recuperare

Birouri firme

Alte activitati comerciale

Nu se aplica TVA

Cod oferta: 2592902

Caracteristici, dotari

Optiuni interior

2+ gr. sanitare

Optiuni exterior

Garaj
Vezi telefon
office@*****.ro
Anunturile utilizatorului
Distribuie Facebook
Anunturi din aceeasi zona
Vezi prețul mediu al zonei

Pagina pe care doriti sa o accesati poate sa contina elemente care nu sunt recomandate minorilor!
Va rugam sa confirmati ca aveti peste 18 ani!