Harta Adauga

Titan, 5 minute metrou, pe strada Adjud, bloc reabilitat, decomandat

85.000 €

Sector 3, ieri, 09:33

Descriere anunt

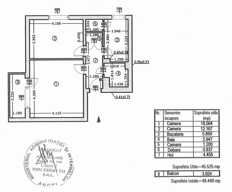
Va prezentam un apartament de 2 camere situat in Titan, la 5 minute metrou si parc IOR, pe strada Adjud intr-un bloc reabilitat din 1970.

Apartamentul este decomandat, are termopane, si necesita renovare.

Toate actele sunt la zi, comisionul agentiei este 2%

Va asteptam la vizionare

Caracteristici, dotari

Optiuni interior

Balcon
Termopan
Usa metalica

Optiuni exterior

Lift
Structura beton
Vezi telefon
adriangeambei@*****...
Anunturile utilizatorului
Distribuie Facebook
Anunturi din aceeasi zona
Vezi prețul mediu al zonei
Trimite mesaj privat

Pagina pe care doriti sa o accesati poate sa contina elemente care nu sunt recomandate minorilor!
Va rugam sa confirmati ca aveti peste 18 ani!