Harta Adauga

Titan, sector 3, apartament 2 camere 57 mp, balcon, terasa, bloc nou

103.600 €

Sector 3, ieri, 19:54

Descriere anunt

Finalizare iunie 2026

Detinem Asigurare Allinanz Tiriac pentru constructie sau alte riscuri.

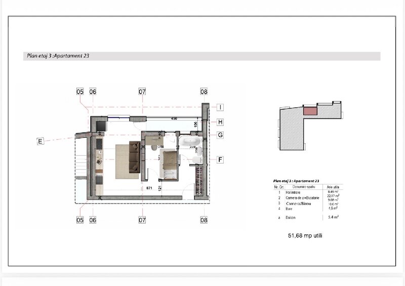
2 Camere cu un regim de inaltime P+ 3, si o suprafata utila aprox de 57 mp+balcon+terasa, apartamentul se preda la stadiul de finisat, cu baia utilata. Blocul dispune de structura de rezistenta din beton si caramida, cu finisaje de o calitate superioara, incalzirea spatiului se realizeaza prin pardoseala, cu centrala proprie, geamuri tripan, cu spatii vitrate mari pentru a beneficia de cat mai multa lumina naturala. Zona este foarte linistita, de case si vile, blocuri cu regim mic de inaltime, ceea ce o face ideala proprietatea pentru locuinta, dar si investitional.

Avans 20%>50% 103.600 fara tva inclus

Parcare supraterana 6000 eur excl tva

Parcare subteran 9000 eur excl tva

Termen finalizare iunie- septembrie 2026. Comision 0% pentru cumparator

Caracteristici, dotari

Optiuni interior

Apometre
Balcon
Centrala termica
Contor gaze
Debara
Inst. electrice noi
Inst. sanitare noi
Izolatie termica
Renovat recent
Termopan
Usa metalica

Optiuni exterior

Interfon
Loc parcare
Structura beton
Structura caramida
Vezi telefon
Anunturile utilizatorului
Distribuie Facebook
Anunturi din aceeasi zona
Vezi prețul mediu al zonei
Trimite mesaj privat

Pagina pe care doriti sa o accesati poate sa contina elemente care nu sunt recomandate minorilor!
Va rugam sa confirmati ca aveti peste 18 ani!