Harta Adauga

Bragadiru, Diamantului, vila 4 camere curte 250 mp, pompa caldura

206.000 €

Bragadiru, 18 mar, 18:24

Descriere anunt

Daca iti doresti o casa moderna aproape de Bucuresti, cu spatiu generos si costuri eficiente de intretinere, aceasta vila individuala cu 4 camere din Bragadiru – zona Diamantului – este o alegere excelenta pentru tine si familia ta.

Proprietatea este amplasata intr-o zona rezidentiala in plina dezvoltare, cu acces rapid catre Prelungirea Ghencea si oras, oferind echilibrul ideal intre liniste si conectivitate urbana.

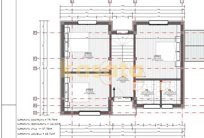
Detalii principale:

Suprafata utila: 125 mp

Suprafata construita: 155 mp

Amprenta la sol: 75 mp

Regim de inaltime: P+1

Teren: 325 mp

Curte libera: ~250 mp

Deschidere: 16 ml

Compartimentare eficienta:

Parter:

Living generos – zona centrala pentru relaxare si socializare

Bucatarie inchisa – practica si bine delimitata

Grup sanitar

Hol + spatii de depozitare

Etaj:

3 dormitoare luminoase

2 bai

Hol

Dotari si beneficii tehnice:

✔ Incalzire in pardoseala – confort termic superior

✔ Pompa de caldura – eficienta energetica si costuri reduse

✔ Constructie din caramida + izolatie exterioara

✔ Pod pentru depozitare

✔ Curent trifazic (380V)

✔ Geamuri termopan

✔ Finisaje personalizabile (in functie de stadiul lucrarii)

Utilitati:

Fosa septica

Put propriu

Exterior – un avantaj major:

Curtea proprie de aproximativ 250 mp iti ofera multiple posibilitati:

amenajare gradina

terasa / zona BBQ

loc de joaca pentru copii

parcare in curte

Localizare

Imobilul este situat in Bragadiru, strada Diamantului, intr-o zona linistita si aerisita, tot mai cautata de familii.

✔ Acces rapid catre Bucuresti

✔ Aproape de Prelungirea Ghencea/ Sos. Alexandriei

✔ Magazine, scoli, gradinite in proximitate

✔ Transport STB disponibil

Stadiu & pret:

Constructie noua (2026), in curs de finalizare

Termen estimat finalizare: iunie 2026

Pret: 206.000 € (TVA inclus)

Pret valabil pentru contractare in martie–aprilie 2026

Posibilitate alegere finisaje (avantaj major pentru cumparator)

De ce recomandam aceasta proprietate:

raport excelent pret / suprafata / locatie

eficienta energetica ridicata (pompa de caldura)

ideala pentru locuire sau investitie

zona in crestere accelerata (potential de apreciere)

📞 Programeaza acum o vizionare si descopera o casa care poate deveni „acasa” in adevaratul sens al cuvantului. Proprietatile bine pozitionate in Bragadiru se tranzactioneaza rapid.

Cod oferta: 2976634

Caracteristici, dotari

Optiuni interior

2+ gr. sanitare
Vezi telefon
paul@*****.ro
Anunturile utilizatorului
Distribuie Facebook
Anunturi din aceeasi zona

Pagina pe care doriti sa o accesati poate sa contina elemente care nu sunt recomandate minorilor!
Va rugam sa confirmati ca aveti peste 18 ani!