Harta Adauga

Snagov, strada Nufarului 50A, Central Snagov, Ilfov

330.000 €

Snagov, azi, 13:33

Descriere anunt

Vizionari duminica 12 octombrie cu programare telefonica, casa nu este locuita.

Reprezentare exclusiva - comision 0% cumparator.

Good Estate va propune spre vanzare o casa cu 6 camere, 3 bai, 2 terase, garaj, spatiu parcare pentru 3 masini si teren 1.490mp in proprietate, stare interior buna (fara imbuntatiri recente), situata in strada Nufarului nr.50A, comuna Snagov – Ilfov.

DETALII PROPRIETATE:

Casa 6 camere

Regim inaltime: Sp+P+M

An constructie: 2006

Suprafata utila: 234 mp

Suprafata construita (amprenta la sol): 188 mp

Suprafata desfasurata: 316 mp

Nr.bai: 3 (o baie cu cada si wc de serviciu la parter, baie cabina de dus la etaj)

Calitate finisaje: medii

Sistem incalzire: centrala termica proprie, calorifere

Utilitati racordate la reteaua publica: gaze, curent, canalizare, apa

ANEXA: Garaj P+M, edificat in 2006

Suprafat garaj = 22,9 mp

Depozitare = 7mp

Mansarda – garsoniera 32 mp

Camera = 15,9 mp

Hol = 6,9 mp

Baie = 3,1 mp

Bucatarie = 3,2 mp

Casa scarii = 3,2 mp

Suprafata construita la sol anexa 38 mp

Suprafata construita desfasurata anexa 76 mp

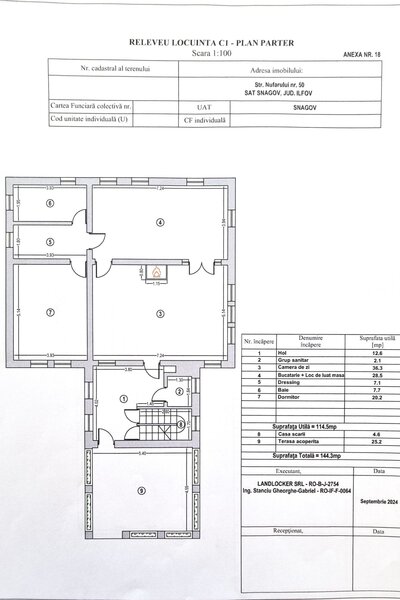
SUPRAFETE imobil conform releveu:

SUBSOL partial

Camera tehnica = 7,4 mp

Pivnita = 7,0 mp

Hol = 2,0 mp

Casa scarii = 3,9 mp

Suprafata totala = 20,3 mp

PARTER

Camera de zi = 36,3 mp

Bucatarie + Loc de luat masa = 28,5 mp

Dormitor = 20,2 mp

Hol = 12,6 mp

Dressing = 7,1 mp

Baie = 7,7 mp

Grup sanitar = 2,1 mp

Suprafata utila = 114,5 mp

Casa scarii = 4,6 mp

Terasa acoperita = 25,2 mp

Suprafata totala parter = 144,3 mp

MANSARDA

Camera = 52,7 mp

Camera = 27,0 mp

Camera = 24,8 mp

Baie = 4,1 mp

Hol = 11,3 mp

Suprafata utila = 119,9 mp

Terasa acoperita = 27,3 mp

Casa scarii = 4,6 mp

Suprafata totala mansarda = 151,8 mp

DETALII TEHNICE:

Structura de rezistenta: beton

Inchideri si compartimentari: caramida

Acoperis: tigla

Instalatii electrice: conductori de cupru in tub de protectie PVC

Izolare termica: panouri de polistiren extrudat

Finisaje interioare si exterioare: tamplarie din lemn, faianta, gresie, parchet.

Caracteristici, dotari

Optiuni interior

2+ gr. sanitare
Aer conditionat
Alimentare apa
Beci/pivnita
Camera serviciu
Canalizare
Centrala termica
Dressing
Gaze
Izolatie termica
Living
Mansarda
Terasa

Optiuni exterior

Curte pavata
Garaj
Gradina
Vezi telefon
goodestate@*****.com
Anunturile utilizatorului
Distribuie Facebook
Anunturi din aceeasi zona
Trimite mesaj privat

Pagina pe care doriti sa o accesati poate sa contina elemente care nu sunt recomandate minorilor!
Va rugam sa confirmati ca aveti peste 18 ani!