Harta Adauga

Tunari Dimieni, vila mobilata si utilata, confort si eleganta

340.000 €

Tunari, ieri, 12:44

Descriere anunt

Vila P+1 moderna in Tunari – Dimieni, compusa din 4 dormitoare si curte generoasa.

❗ Comision 0% pentru cumparator

Va prezentam o vila spatioasa si bine compartimentata, situata intr-o zona linistita din Tunari – Dimieni, potrivita pentru cei care isi doresc confort, functionalitate si acces facil catre zona de nord a Capitalei.

Construita in 2014, proprietatea se remarca prin suprafetele generoase si organizarea practica a fiecarui nivel.

Date tehnice ale proprietatii:

• Teren total: 393 mp

• Amprenta la sol: 114 mp

• Suprafata utila: 202 mp

• Suprafata totala: 220 mp

• Suprafata desfasurata: 245 mp

• Curte libera: 279 mp

• Regim de inaltime: Parter + 1

Compartimentare

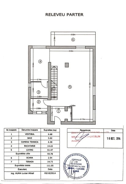
Parter:

• Living luminos cu acces direct catre terasa

• Bucatarie spatioasa, ideala pentru zona de dining

• Baie

• Camera tehnica

• Terasa de 14,73 mp, cu acces din living – perfecta pentru relaxare

Etaj:

• 4 dormitoare, dintre care un dormitor matrimonial

• baia 2 amplasata pe hol

• 2 balcoane

Alte avantaje

• Casa se vinde mobilata si utilata exact ca in fotografii, ceea ce permite noilor proprietari sa se mute fara investitii suplimentare.

• Izolatia este prezenta atat pe exterior unde avem polistiren cat si pe interior unde avem vata bazaltica.

• Curtea libera generoasa de 279 mp ofera spatiu pentru gradina, loc de joaca, zona de relaxare sau proiecte viitoare.

Accesibilitate excelenta:

• Se afla la doar cateva minute de Pipera, A3, Soseaua de Centura si DN1, facilitand accesul rapid catre Bucuresti, Aeroportul Otopeni, zona de birouri din nord si centre comerciale importante.

• Drumurile sunt modernizate, iar dezvoltarea infrastructurii este in continua crestere.

Zona rezidentiala in dezvoltare:

• La cateva minute se afla centre comerciale importante din nordul Bucurestiului: Baneasa Shopping City, Ikea, Decathlon, Jolie Ville, precum si zone de birouri.

Caracteristici, dotari

Optiuni interior

2+ gr. sanitare
Aer conditionat
Centrala termica
Fosa septica
Gaze
Izolatie termica
Living
Terasa

Optiuni exterior

Gradina
Vezi telefon
contact@*****.ro
Anunturile utilizatorului
Distribuie Facebook
Anunturi din aceeasi zona
Trimite mesaj privat

Pagina pe care doriti sa o accesati poate sa contina elemente care nu sunt recomandate minorilor!
Va rugam sa confirmati ca aveti peste 18 ani!