Harta Adauga

Rahova, sos. Alexandriei intersectie sos. Antiaeriana, stradal vitrina 12 m

255.000 €

Sector 5, ieri, 20:42

Descriere anunt

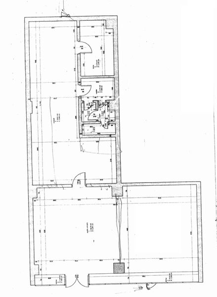
Va prezentam in exclusivitate un spatiu comercial situat in Rahova, chiar pe Sos Alexandriei intersectie Sos Antiaeriana, stradal, la parterul unui bloc din 1978 cu 10 etaje, cu vitrina de 12 ml.

Suprafata utila este de 136 mp si suprafata construita este de 150 mp.

Spatiul are 2 intrari prin fata si prin spatele blocului, 2 grupuri sanitare, centrala, curent trifazic 380V.

Comisionul agentiei este 2 %

Va asteptam la vizionare.

Caracteristici, dotari

Detalii Suplimentare

Apa
centrala termica
curent electric
Gaze
Grup sanitar
Parcare
Vad comercial
Vitrina stradala
Vezi telefon
adriangeambei@*****...
Anunturile utilizatorului
Distribuie Facebook
Anunturi din aceeasi zona
Vezi prețul mediu al zonei
Trimite mesaj privat

Pagina pe care doriti sa o accesati poate sa contina elemente care nu sunt recomandate minorilor!
Va rugam sa confirmati ca aveti peste 18 ani!