Harta Adauga

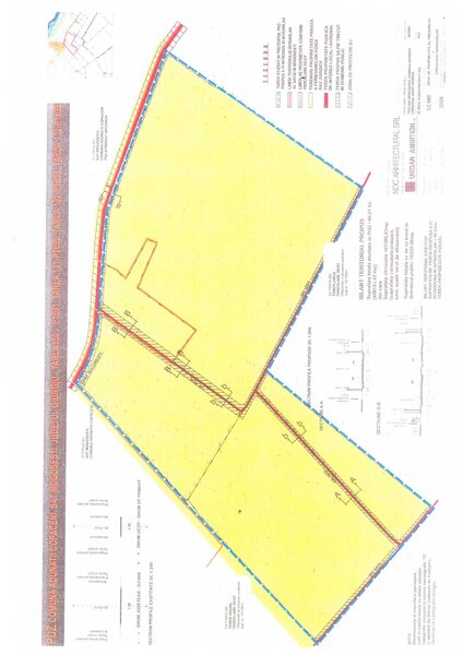
Adunatii Copaceni, 40 ha, d. 800 m

19 €

Adunatii-copaceni, ieri, 09:54

Descriere anunt

Adunatii - Copaceni - Mogosesti, cca un Km pana la viitorul aeroport, teren intravilan, 37 Ha (370000 mp).

Drum asfaltat pe trei laturi, deschidere la Drumul Judetean - 800 m. Post trafo la teren (exista posibilitatea de a infiinta altele - exista linie de medie tensiune), gaze (4 - 6 barr), put de adancime.

Pe teren sunt mai multe constructii cu diverse functiuni.

Terenul se afla la cca 4 km de A0 - de unde au legaturi cu toate autostrazile.

In apropiere se afla Delta Neajlovului si Padurea Comana - agrement.

Pretabil pentru cartier de locuinte, parc industrial(aproape de viitorul aeroport), orice alta destinatie.

Pret = 19,5 euro/mp- usor discutabil.

Oferta speciala

Caracteristici, dotari

Detalii suplimentare

Acces drum asfaltat
Alimentare apa
Cadastru
Canalizare
Certificat urbanism
constructie teren
Curent electric
Gaze
Ingradit
Intabulare
Liber
Puz
Stradal
Vezi telefon
uigimob@*****.com
Anunturile utilizatorului
Distribuie Facebook
Anunturi din aceeasi zona
Trimite mesaj privat

Pagina pe care doriti sa o accesati poate sa contina elemente care nu sunt recomandate minorilor!
Va rugam sa confirmati ca aveti peste 18 ani!