Harta Adauga

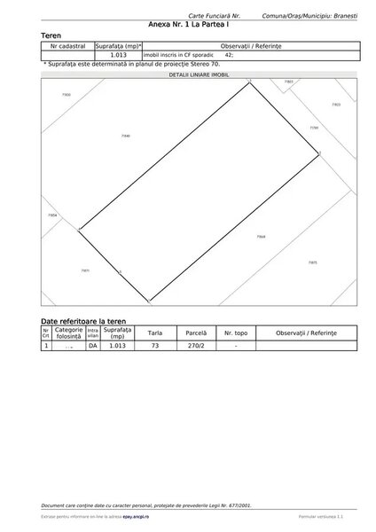
Pasarea, Branesti, teren intravilan, 1.013 mp,

95.000 €

Ilfov, 29 dec, 13:22

Descriere anunt

Va oferim spre vanzare un teren intravilan de 1013 mp, situat in localitatea Pasarea, Branesti, intr-o zona linistita, ideala pentru constructia unei locuinte sau a unei case de vacanta.

Caracteristici:

- Utilitati disponibile la proprietate: gaz si curent electric

- Acces facil

- Vecinatati naturale: lac si padure, perfect pentru iubitorii de natura si relaxare

- Facilitati in apropiere: gradinita, scoala, colegiu, magazine, piata

- Zona linistita, fara circulatie auto, ideala pentru familii si pentru cei care cauta un refugiu departe de agitatia urbana

Un loc deosebit, unde natura si confortul se imbina perfect!

Contactati-ne pentru detalii si vizionare!

VAUNT ID: 91133

Vezi telefon
cristina.dan@*****.r..
Anunturile utilizatorului
Distribuie Facebook
Anunturi din aceeasi zona

Pagina pe care doriti sa o accesati poate sa contina elemente care nu sunt recomandate minorilor!
Va rugam sa confirmati ca aveti peste 18 ani!