Harta Adauga

Pipera,

4.580.000 €

Voluntari, 30 dec, 11:52

Descriere anunt

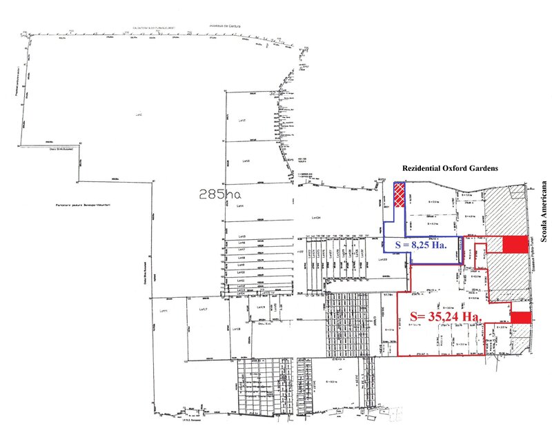
padurea Baneasa, vanzare teren forestier (padure) in suprafata de 35,24 Ha. cu 2 deschideri generoase la Sos. Pipera - Tunari din care suprafata de 1,83 Ha. este situat in intravilanul localitatii Voluntari.

Regimul economic: functiunea zonei V5 – pentru suprafata de 33,41 Ha. – paduri de agrement si plantatii forestiere, este situata in extravilanul Localitatii Voluntari.

Categoria de folosinta: intravilan construibil pentru portiunea de teren (1,83 Ha.) cuprinsa in intravilanul Localitatii Voluntari ce beneficiaza de indicatori urbanistici : pentru U.T.R. M3 – P.O.T. max. 50%. C.U.T. max. = 2,2, pentru parcelele mai mari de 700 mp. (conf. Certificat de Urbanism) C.U.T. -ul poate fi de 2,7 .

Localizare: terenul este situat vav de American International School of Bucharest, in Cartierul Pipera, langa Rezidential Oxford Gardens.

Utilitati: canalizare, gaze, energie electrica si apa.

Facilitati: acces direct la strada betonata – Sos. Pipera - Tunari,

Caracteristici, dotari

Detalii suplimentare

Acces drum asfaltat
Alimentare apa
Cadastru
Certificat urbanism
Curent electric
Gaze
Intabulare
Stradal
Vezi telefon
munteniagrup2005@***..
Anunturile utilizatorului
Distribuie Facebook
Anunturi din aceeasi zona
Trimite mesaj privat

Pagina pe care doriti sa o accesati poate sa contina elemente care nu sunt recomandate minorilor!
Va rugam sa confirmati ca aveti peste 18 ani!