Black Friday - 50% (14-17.11)
Adaugă, reactivează, prelungește orice anunț
Reducere 50% în perioada 14 - 17 noiembrie
Black Friday
Adaugă, reactivează, prelungește orice anunț
Mosilor Vanzare apartament 4 camere in vila zona Mosilor
150.000 €
Mosilor Vanzare apartament 4 camere in vila zona Mosilor
150.000 €
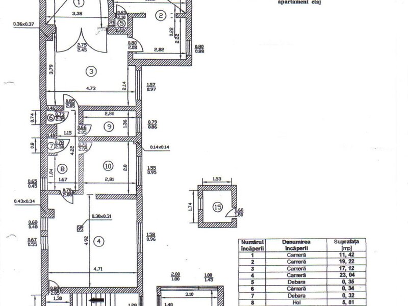
Caracteristici
Suprafata 131 mp
An 1930
Semidecomandat
Etaj 1 din 1
Optiuni interior: 2 grupuri sanitare Contor gaze
Optiuni exterior: Boxa subsol M 17 min.
Optiuni interior: 2 grupuri sanitare Contor gaze
Optiuni exterior: Boxa subsol M 17 min.
Descriere
Biserica Silvestru Apartamentul se afla la etajul unei vile cu regim de inaltime S+P+1E de pe strada Oltarului nr. 9, in spatele bisericii Sfantul Silvestru, langa scoala gimnaziala cu acelasi nume si la circa 100 m distanta de Calea Mosilor.
Are o suprafata totala de 128.75 mp, ocupa intregul etaj si este alcatuit din 4 camere de locuit, dependinte si doua terase acoperite incorporate apartamentului.
Terenul pe care se afla imobilul are o suprafata de 249.21 mp si o curte libera de 86.52 mp.
In trecut au fost demarate lucrari de reamenajare, care au fost insa sistate.
In posesia proprieatarilor apartamentului se mai afla si o boxa de 2.66 mp la subsol, precum si o cota indiviza de 40% din terenul aferent intregului imobil.
Imobilul a fost construit in jurul anilor 1930 si necesita consolidare, ocazie cu care apartamentul va putea fi reconfigurat functional si eventual mansardat.
Are o suprafata totala de 128.75 mp, ocupa intregul etaj si este alcatuit din 4 camere de locuit, dependinte si doua terase acoperite incorporate apartamentului.
Terenul pe care se afla imobilul are o suprafata de 249.21 mp si o curte libera de 86.52 mp.
In trecut au fost demarate lucrari de reamenajare, care au fost insa sistate.
In posesia proprieatarilor apartamentului se mai afla si o boxa de 2.66 mp la subsol, precum si o cota indiviza de 40% din terenul aferent intregului imobil.
Imobilul a fost construit in jurul anilor 1930 si necesita consolidare, ocazie cu care apartamentul va putea fi reconfigurat functional si eventual mansardat.
3.263 vizualizari
Bucuresti, Sector 2, ieri; 11:15
Actualizat 01 Octombrie '25
Actualizat 01 Octombrie '25
Statii metrou
| Obor | 17 min | |
| Strada Batiștei | 21 min | |
| Strada Ion Câmpineanu | 23 min |
Statii STB
| 79 , 86 , 97 135 , 311 | Calea Moșilor | 5 min |
| 79 , 86 , 97 135 | Piața Gemeni | 6 min |
| Mihai Eminescu | 6 min | |
| 311 | Vasile Lascar | 10 min |
| 69 , 79 , 85 , 86 , 97 135 , N108 | Foișorul de Foc | 10 min |
| Bulevardul Carol I | 13 min |
Evolutia preturilor imobiliare in Mosilor-Dacia
se incarca..
