Ion Mihalache, Alpinistilor, 1 Mai, Expozitiei Domenii Grivita Nord
369.000 €
Ion Mihalache, Alpinistilor, 1 Mai, Expozitiei Domenii Grivita Nord
369.000 €
Caracteristici
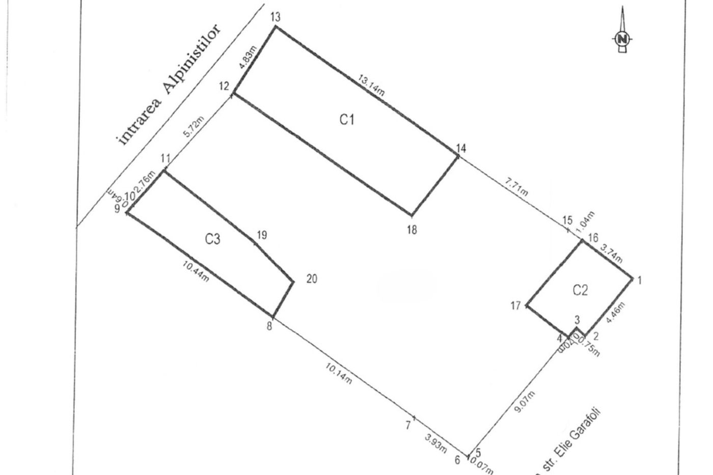
Suprafata 348 mp
Intravilan
Deschidere 14 ml
Detalii suplimentare: Acces drum asfaltat Alimentare apa Autorizatie constructie Cadastru Certificat urbanism constructie teren Curent electric Cut Gaze Ingradit Intabulare Liber Pot M 12 min.
Detalii suplimentare: Acces drum asfaltat Alimentare apa Autorizatie constructie Cadastru Certificat urbanism constructie teren Curent electric Cut Gaze Ingradit Intabulare Liber Pot M 12 min.
Descriere
Teren cu autorizatie de construire casa Parter emisa in 2025!
Reprezentare exclusiva, comision 0% cumparator!
Teren perfect pentru casa familiei tale, aflat pe o strada linistita (Intrarea Alpinistilor), zona 1 Mai, foarte aproape de cartierul Domenii si Bulevardul Expozitiei, statia de Metrou 1 Mai, straduta cu acces din Ion Mihalache in spatele blocurilor de la bulevard.
Zona este una rezidentiala, linistita, aproape de scoli, gradinite, transport public si alte facilitati necesare unei vieti confortabile.
Terenul are suprafata din masuratori 348mp si constructii demolabile 100mp, forma dreptungiulara, topografie plana, ideal pentru constructia unei case moderne. Exista autorizatie de construire emisa in 2025 pentru o casa cu regim de inaltime Parter si terase, POTpropus = 37% si CUTpropus = 0.37, suprafata construita/desfasurata 128mp (155mp cu terase).
Amplasament deosebit datorita vecinatatilor si accesului rapid catre nordul si vestul Bucurestiului, apropierii de Bulevardului Expozitiei, statiei de metrou 1 Mai si viitoarea linie de metrou M6 spre Aeroportul Otopeni, zona Domenii, etc.
Terenul beneficiaza de toate utilitatile: apa, canalizare, gaze, energie electrica.
Indicatori urbanistici zona:
- Subzona L1a (locuinte individuale si colective de mici dimensiuni cu maxim P+2 niveluri, situate in afara perimetrelor de protectie);
- Suprafata din masuratori 348mp, suprafata din acte 338mp;
- Front stradal: 13,9m;
- Regim inaltime: P+2; posibilitate mansardare 60% din aria unui nivel curent;
- POTmax = 45%;
- CUTmax = 0,9 (P+1) si 1,3 (P+2);
- Raportul laturilor: 0,55
- Latime drum = 9,5m
- Latime cale circulatie auto = 6,5m.
VECINATATI: Bulevardul Ion Mihalache, Bulevardul Expozitiei, Cartierul Domenii, Piata Domenii, Piata Chibrit, Facultatea de Agronomie, scoli, gradinite, Metrou 1 Mai.
Reprezentare exclusiva, comision 0% cumparator!
Teren perfect pentru casa familiei tale, aflat pe o strada linistita (Intrarea Alpinistilor), zona 1 Mai, foarte aproape de cartierul Domenii si Bulevardul Expozitiei, statia de Metrou 1 Mai, straduta cu acces din Ion Mihalache in spatele blocurilor de la bulevard.
Zona este una rezidentiala, linistita, aproape de scoli, gradinite, transport public si alte facilitati necesare unei vieti confortabile.
Terenul are suprafata din masuratori 348mp si constructii demolabile 100mp, forma dreptungiulara, topografie plana, ideal pentru constructia unei case moderne. Exista autorizatie de construire emisa in 2025 pentru o casa cu regim de inaltime Parter si terase, POTpropus = 37% si CUTpropus = 0.37, suprafata construita/desfasurata 128mp (155mp cu terase).
Amplasament deosebit datorita vecinatatilor si accesului rapid catre nordul si vestul Bucurestiului, apropierii de Bulevardului Expozitiei, statiei de metrou 1 Mai si viitoarea linie de metrou M6 spre Aeroportul Otopeni, zona Domenii, etc.
Terenul beneficiaza de toate utilitatile: apa, canalizare, gaze, energie electrica.
Indicatori urbanistici zona:
- Subzona L1a (locuinte individuale si colective de mici dimensiuni cu maxim P+2 niveluri, situate in afara perimetrelor de protectie);
- Suprafata din masuratori 348mp, suprafata din acte 338mp;
- Front stradal: 13,9m;
- Regim inaltime: P+2; posibilitate mansardare 60% din aria unui nivel curent;
- POTmax = 45%;
- CUTmax = 0,9 (P+1) si 1,3 (P+2);
- Raportul laturilor: 0,55
- Latime drum = 9,5m
- Latime cale circulatie auto = 6,5m.
VECINATATI: Bulevardul Ion Mihalache, Bulevardul Expozitiei, Cartierul Domenii, Piata Domenii, Piata Chibrit, Facultatea de Agronomie, scoli, gradinite, Metrou 1 Mai.
52 vizualizari
Bucuresti, Sector 1, Publicat azi; 13:44
Actualizat azi; 13:44
Actualizat azi; 13:44
Statii metrou
1 Mai | 12 min | |
Grivița | 19 min | |
Jiului - Ascensor | 53 min |